Recent Posts
Lesss Goooooo
Temperatures at your place
I love old films
Does anyone get any eerie nostalgia about ancient ...
Truthpill
Match day
Magnus wins again
who do you think is the real main character of foo...
Happy New Year
gaytakus in here
I feel like China is going to wreck us soon
Friendly Reminder
Brootal
Going to party tomorrow in some fancy delhi hotel but i am scared shitless of getting heightmogged there. >T. 5.5 anan
Dark Romance - What's the appeal?
SADDAM HUSAIN WAS A JAAT
I want to f my stacy masi
/nep/
imagine hindu chechnya
How tf
The only 3dpd I'd tolerate
How to ageminn?
post typing speeds anonwa
Yaar bhachad spreading outside .com
LQ0xff
No.408669
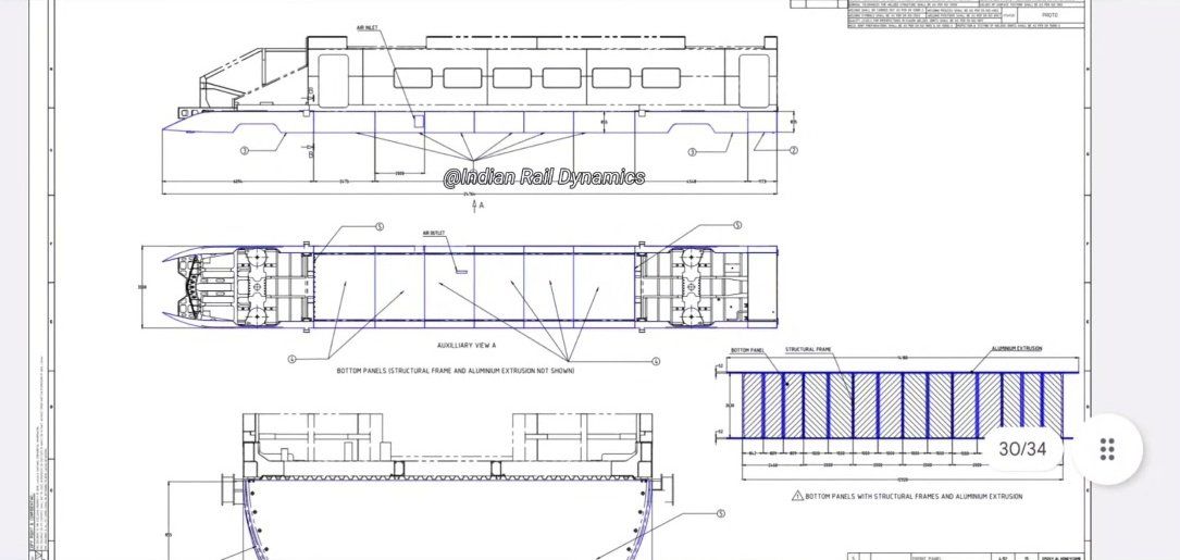
BEML’s upcoming High Speed Trainset (Train-B28)
Two indigenous 8 coach high speed trainsets are being built by BEML for trials on the Mumbai-Amdavad High Speed Rail Corridor
Mockup: Q1 2026
First rake rollout: Q4 2026
Second rake rollout: 2027
Speed & performance
Design and test speed 280 kmph
Operational speed 249 kmph
Average running ~2,000 km per day
Service braking 0.8 m/s², emergency jerk 1 m/s³
8-car distributed power configuration
DTC + MC + TC + MC + MC + TC1 (Executive) + MC + DTC
Driving cabs at both ends
Executive class + PRM provision
Standard Gauge, EN-12663 compliant
Structure & design
Lightweight steel & stainless-steel carbody
Underframe and exterior designed for 280 kmph load conditions
Lightweight epoxy aluminium honeycomb sandwich panels used for aerodynamic bogie covers, bottom panels and openable side covers
Full carbody squeeze and structural tests at BEML Bengaluru in 2026
Built for Indian conditions
−5°C to 50°C operation
Heavy monsoon flooding resistance
Dusty desert & saline coastal environments
High wind resistance within safety limits
Manufacturing & safety
Laser, TIG, MIG/MAG welding
100% NDT ultrasonic radiography & magnetic testing
Third-party structural and weld validation
A major leap toward Bharat’s indigenous high speed rail ecosystem
Note: The 4th image used is an AI generated visualisation, created based on official 2D drawings and technical documents.

S03siw
No.408677
>>408669(OP)
you're late saar, this happened days ago
LQ0xff
No.408690
>>408677
didn't see a thread here





















































